< back

entourage 3

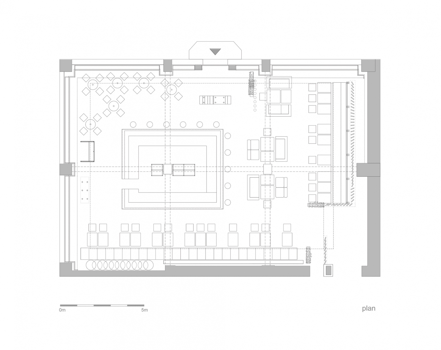
“Entourage” means first socializing but also what we want to become and leave behind us into a big marriage with the future. we must take socializing on different layers as a positive game, first with ourselves. it is a game that helps us not being subordinated to some dogmas, it is a game that should make us expect to learn continuously… also that we are in a continuous workout in this construction site of our souls. the construction site as a simple environment, instantly accesible, existing in non-finished, recycled state is what is enough to have and use in this performance of mutual meeting. it is a stage in which the purity of materials – wood, concrete, metal, glass – exposes to meeting in the same time our entourage and our sublimation… the rough materials brought into dialogue by the rythm and the anti-rythm are a constant theme of this place’s ambient. the bar is a first counter where since you get close to you dock to the proposed socializing game. the three huge graphic masques as an enlighting wall across the entrance composed from diverse faces, culturally ambiguous, show the light of the great déjà vu that we join. the filter of an imposing “E” at the entrance reminds us that we pass the portal to a new state of mind – Entourage3.

published in archdaily , architizer , 10.aeccafe.com , Igloo magazine 158 , archello

  • Year 2014
  • Size 250sqm
  • Location Bucharest
  • Status Completed
  • Client confidential
  • Type Contracted