< back

Rahova Commodities Exchange

Arhitext Design Prize for restoration 2009

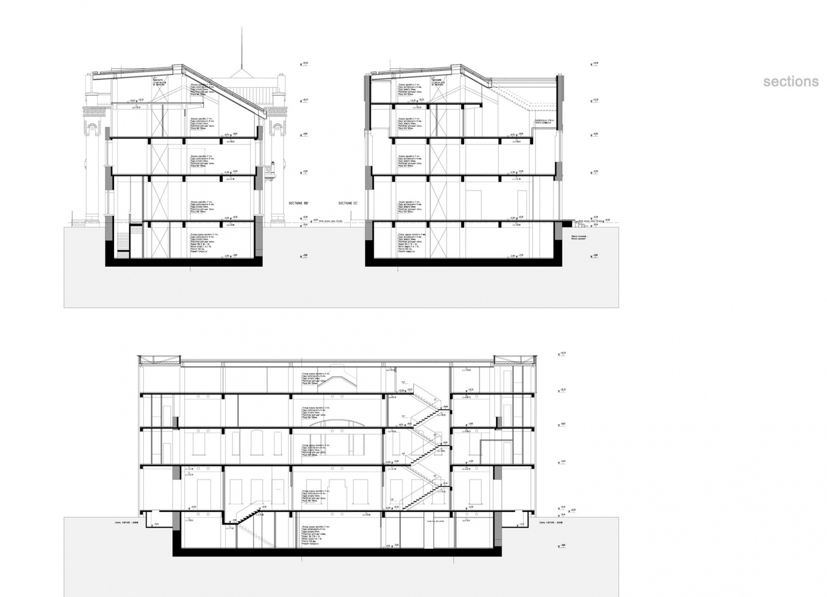
the project represents the revitalisation of a historical monument building in Bucharest that becomes an alternative cultural centre and office headquarters for a couple of companies. the contrast between the exterior shell and the interior world is the primary concept that nourishes this project.

Published in: arhiforum.ro, aeccafe.com,  archdaily.com, architonic.com

  • Year 2008
  • Size 3000sqm
  • Location Bucharest
  • Status Completed
  • Type Contracted
  • Name Rahova Commodities Exchange
  • Client The Ark