< back

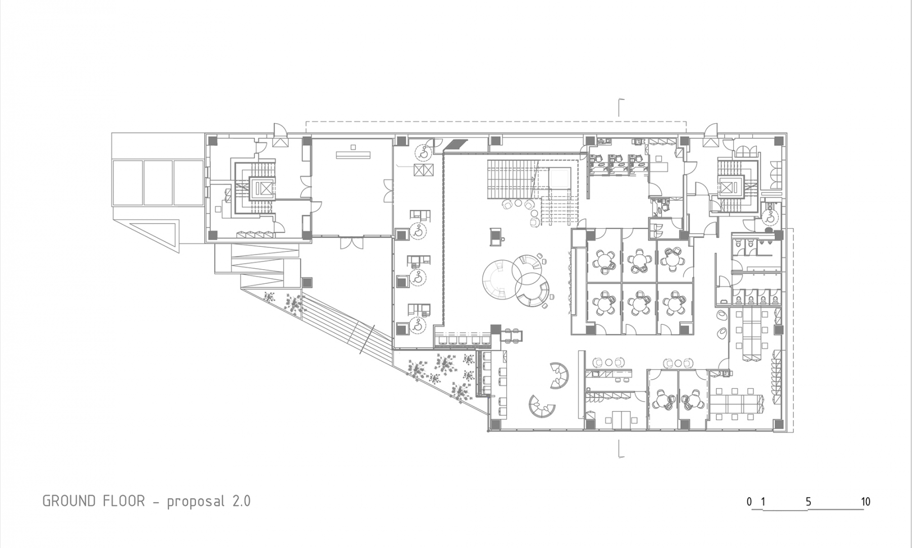
bcr timisoara offices

a structure like an abstract waterfall welcomes you at the street front, standing in contrast to the fragmented, impersonal crossroads nearby. this intriguing intervention reshapes the urban landscape, redefining the presence of the regional headquarters of a bank in timișoara. the project embraces a complete interior and exterior transformation, reimagining its spatial distribution and architectural language.

the essence of this transformation is captured in the interplay between two distinct elements: the abstract, two-dimensional texture of the “waterfall” and the overlapping architectural planes that shift across various levels and perspectives. the façade expresses a dynamic contrast—the raw plaster, evoking the mineral essence of nature, juxtaposed with the high-tech sophistication of water’s abstractly textured glass.

a striking focal point emerges in the form of the “11” element, a macro-scale visual marker with symbolic resonance. by day and night, it stands as an iconic presence, simply yet powerfully representing the building’s postal number.

the interstitial space at the entrance becomes an interactive transition zone, its ceiling reflection introducing a sense of spatial duality. it draws in passersby, inviting engagement while signaling the building’s distinct identity.

a cubist approach to the parapets of the access platform further reinforces the mineral theme, transforming the space into a dynamic, interactive playground where architectural form and meaning converge.

 

 

  • Year 2020
  • Size 6200sqm
  • Client banca comerciala romana
  • Name bcr timisoara offices
  • Status Completed
  • Type Contracted
  • Location timisoara