< back

B4

BigSEE Interior Design Award 2020

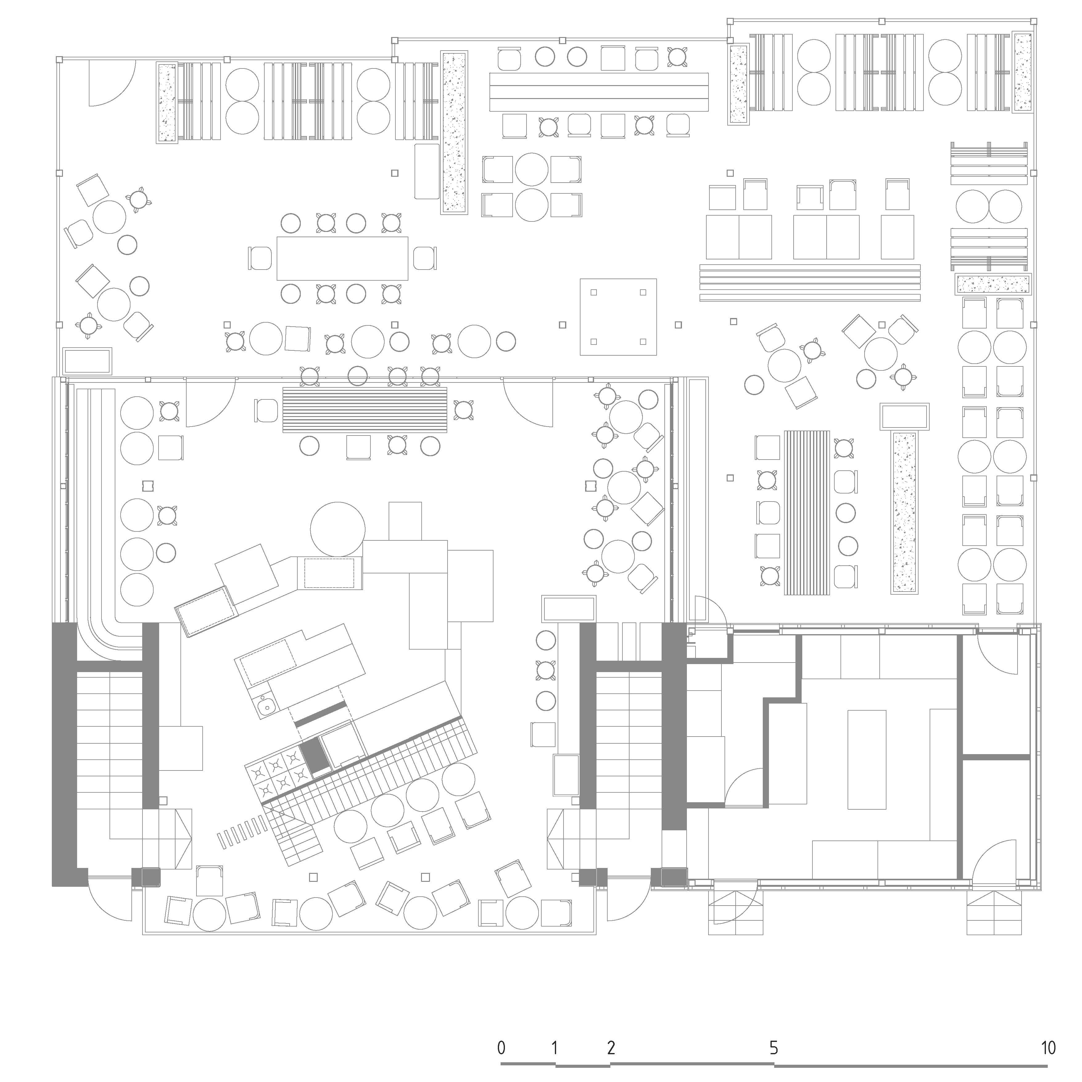
the store or the usual market as the daily venue in town is for everyone the symbol of exchanging news, fragrances, flavors, emotions… it’s the place to get a real cultural pulse or a vitaminizing sensorial experience. B4 is the place where like at the market we are assaulted by a multitude of objects, colors and materials vibrated by the light of the moment that open our senses towards a possible revealing feel. the visual, auditory, olfactory and gustatory emotions display here one by one into a “garden” of experiences, touching the “explorers” within us in the context of the new Bucharest urban landscape…

published in: e-architect , architizer , archello , aeccafe , FORO International Forum for Reputation in Hospitality

  • Year 2019
  • Size 400sqm
  • Name B4
  • Location Bucharest
  • Status Completed
  • Client confidential
  • Type Contracted