< back

Cinema Dacia Baia Mare

 

Rehabilitation and Modernization of Cinema and Park Baia Mare

This project aims to revitalize the town’s cinema building, blending heritage preservation with contemporary innovations to create a dynamic cultural landmark.

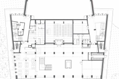
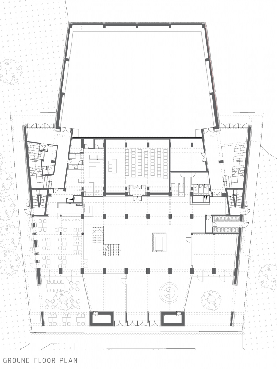
A centerpiece of the transformation lies in the reorganization and modernization of the interior spaces. The design introduces fresh, innovative elements that breathe new life into the iconic 800-seat cinema hall while maintaining its original configuration. The revamped hall will feature ergonomic seating, optimized acoustic solutions for unparalleled sound quality, and artistic wall treatments that celebrate the building’s rich history and cinematic legacy. The proposed lighting systems will enhance the ambiance, creating a sensitive experience for audiences during screenings and events.

The interior redesign also emphasizes functionality and fluidity. Carefully crafted foyers and circulation spaces will improve spatial flow, encouraging effortless movement between areas. Special attention is given to creating welcoming communal zones, such as modern lounge spaces and intimate gathering spots, ideal for fostering social interactions and cinematic discussions. High-quality finishes, including natural materials and contemporary textures, will infuse the spaces with an inviting atmosphere that balances sophistication and comfort.

The rehabilitation extends beyond the cinema hall to include innovative features like accessible terraces that offer panoramic views, and a revitalized facade seamlessly connecting the restaurant to the promenade. These additions aim to integrate the building into the urban landscape, fostering a stronger connection with the community.

Through natural ventilation and lighting strategies, as well as sustainable technologies and upgraded technical systems, the building will meet the highest standards of energy efficiency and durability. This ensures that the cinema is equipped to accommodate future functionalities while maintaining a commitment to environmental responsibility.

This project celebrates the unique identity of the cinema building by combining its heritage with fresh design experiences, transforming it into a hub for modern cinematic culture and community engagement.

 

  • Size 14300sqm
  • Year 2025
  • Location baia mare
  • Client city of baia mare
  • Type Contracted
  • Status execution project completed