< back

crazy

Nominated at Bucharest Architecture Biennial 2004

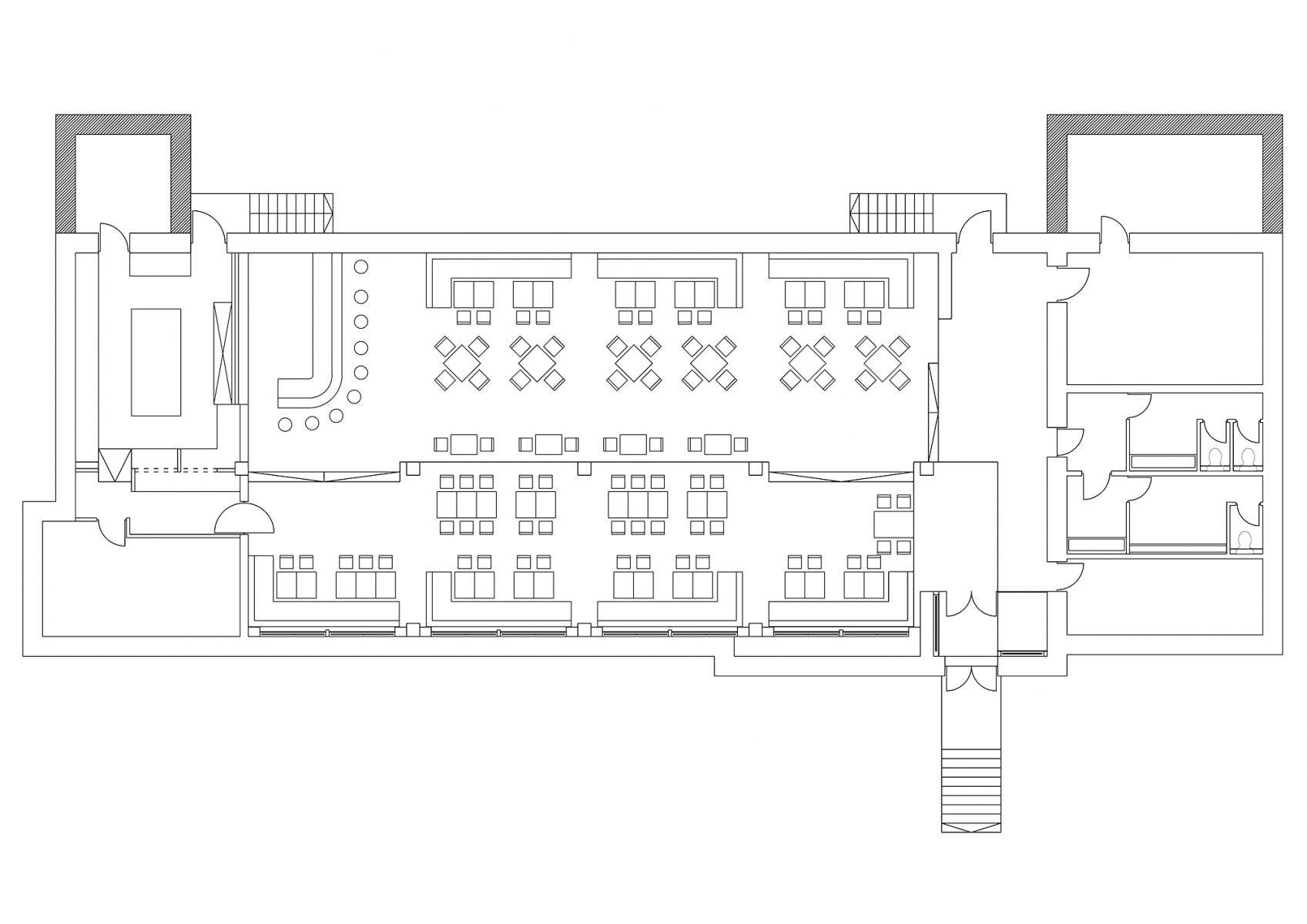
  • Year 2004
  • Size 980sqm
  • Status Completed
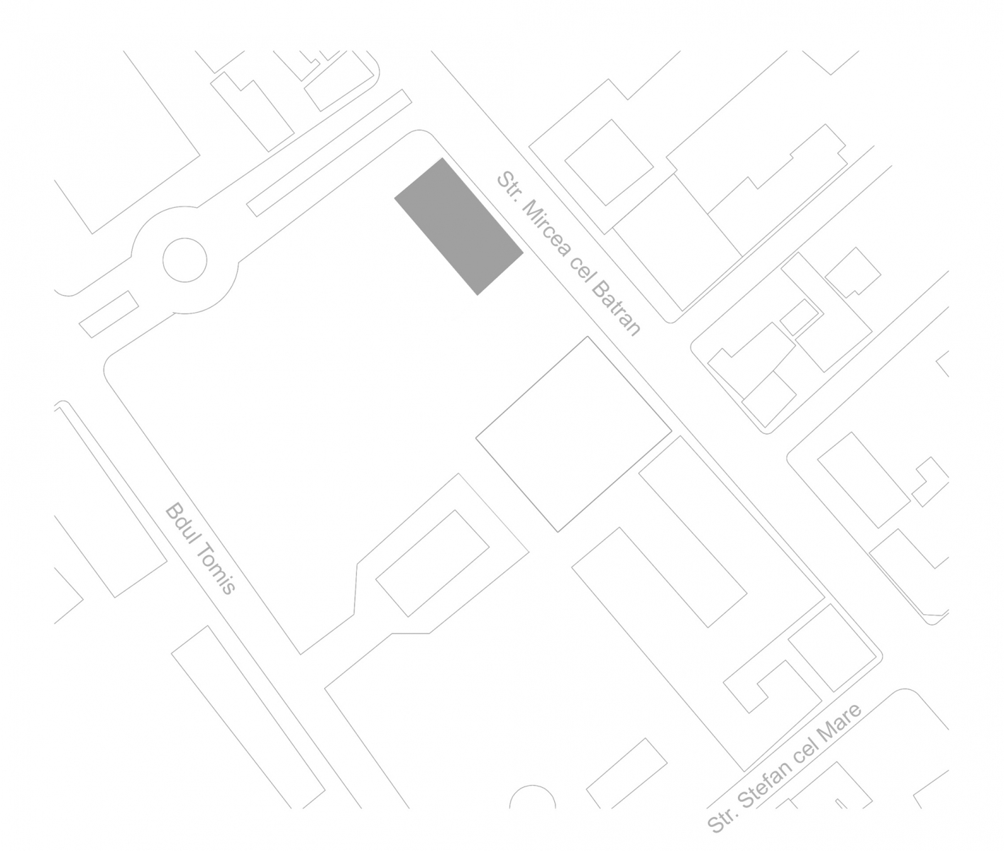
  • Location Constanta
  • Name crazy
  • Client underground club