< back

the c.a.p.

The Architecture Prize for social-cultural projects section of Architecture Annual, Bucharest 2014 anuala.ro

Honorable mention at Romanian Building Awards 2016

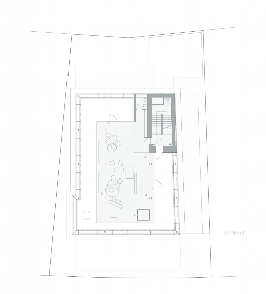
concept house in a reprezentative area in bucharest apears as both a subject and an object, towards becoming a place of fashionable meetings and events. the new design approach dwells upon the classical facades of the building, while completely revitalizing the interior spaces. an implementation in the height of the building has appeared as a necessity to the functional role of a belvedere point, while completing the concept through the 360 degree view above the neighboring areas and the entire city. we have considered as a major gesture for our building the classical syntagma of the composed object: sculpture and pedestal. the sensation of levitation between the classical pedestal and the abstract bronze intervention stresses upon the duality amidst the old and the new, while revealing the special function of the belvedere point present at this height. the gigantic bronze canopy captivates, protects and intrigues the viewer towards the street, suffering an undefined transformation towards the back of the house. the house is a sign within the city, a sign that notes the identity of the place in replenished coordinates. the superelevation of the house is in fact a Cantilevered Abstract Product of the city. is a c.a.p.

published in archdaily , domus , Mark no 55 , Igloo no 154

  • Year 2014
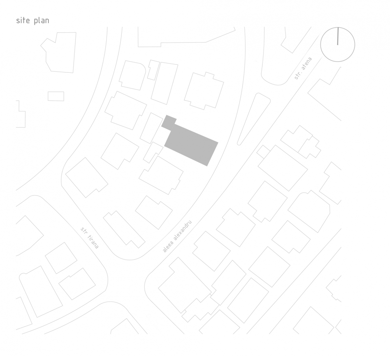
  • Location 21 Aleea Alexandru
  • Size 3050sqm
  • Location Bucharest
  • Status Completed
  • Client confidential
  • Type Contracted
  • Name the c.a.p.