< back

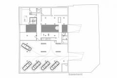
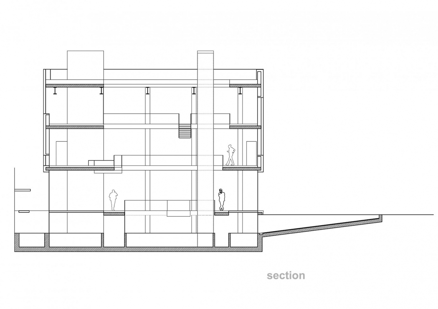
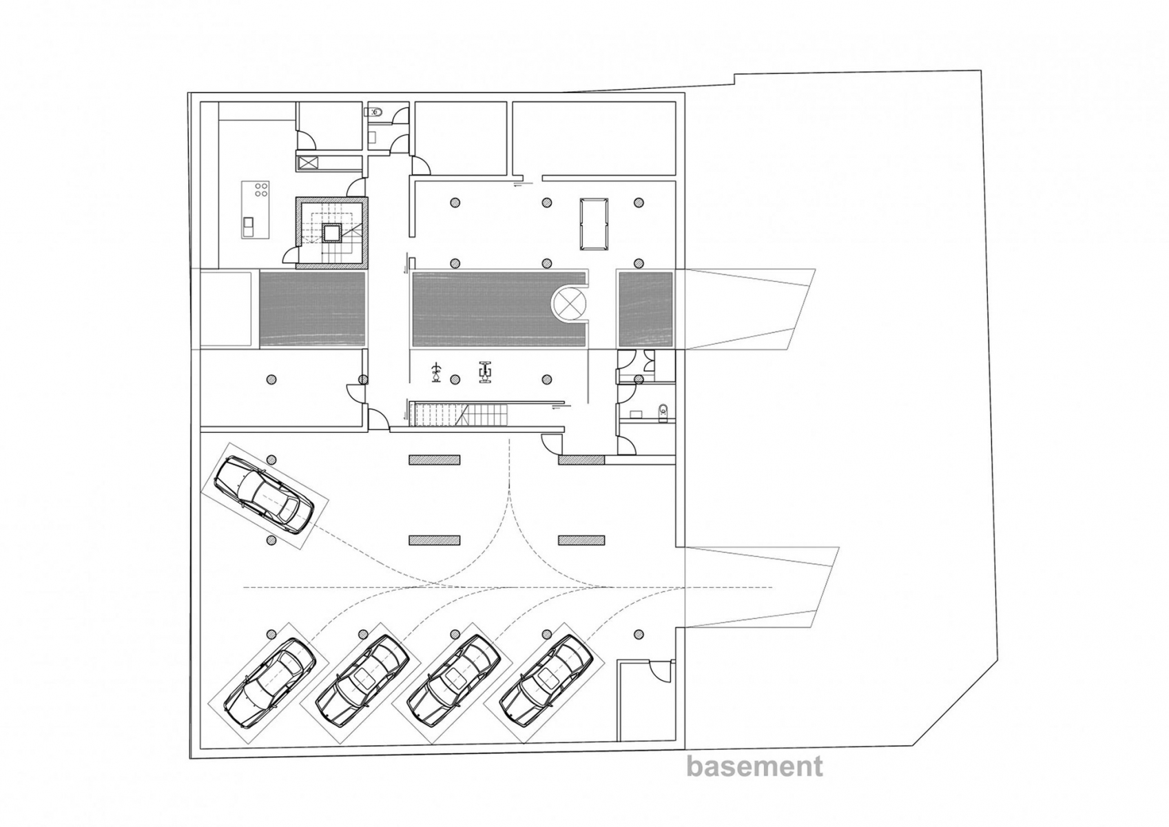
kiseleff residence

  • Year 2004
  • Size 2010sqm
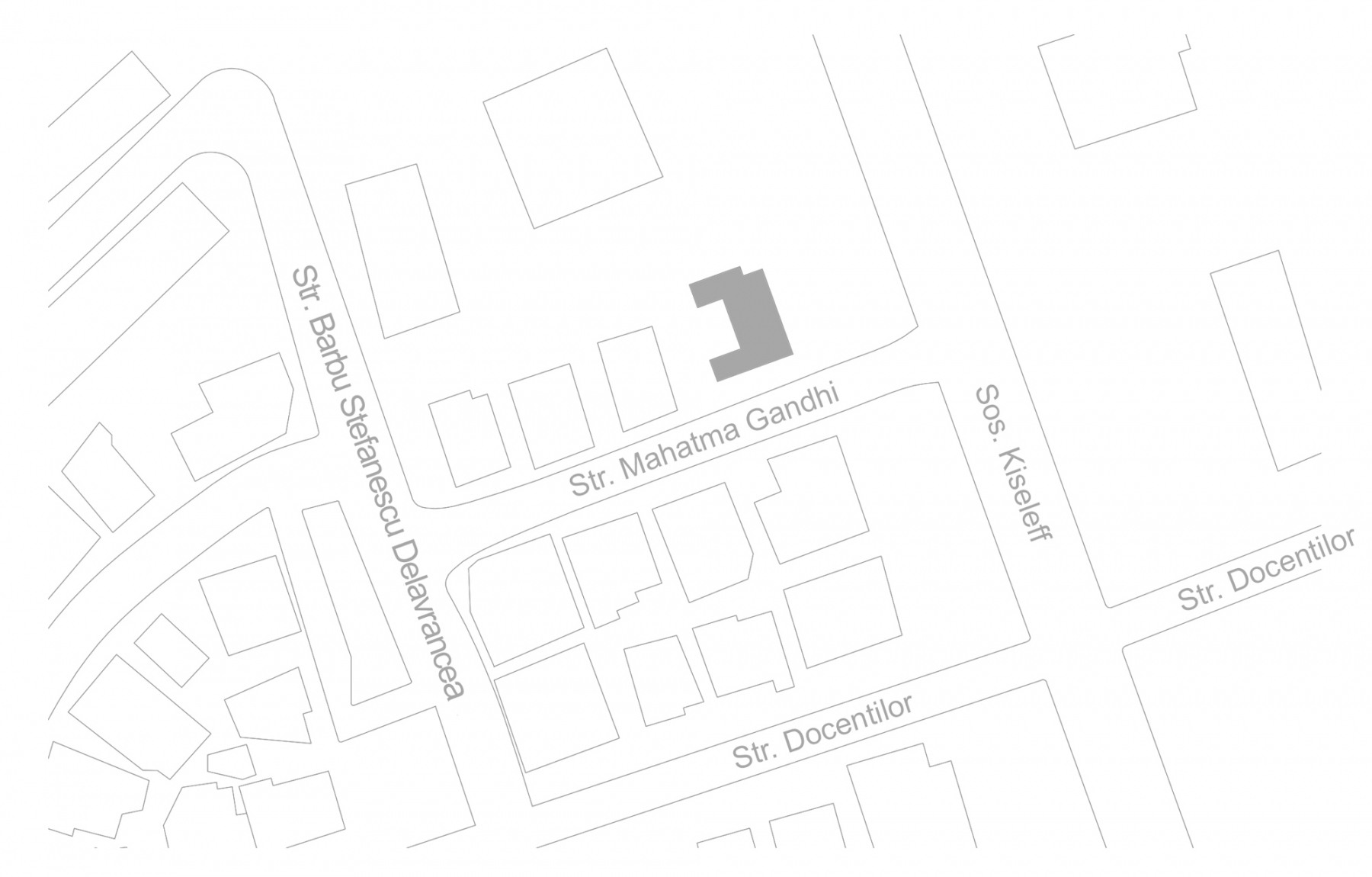
  • Location Bucharest
  • Status concept proposal
  • Client emil mihai tufan
  • Name kiseleff
  • Type Proposal