< back

marasescu residence

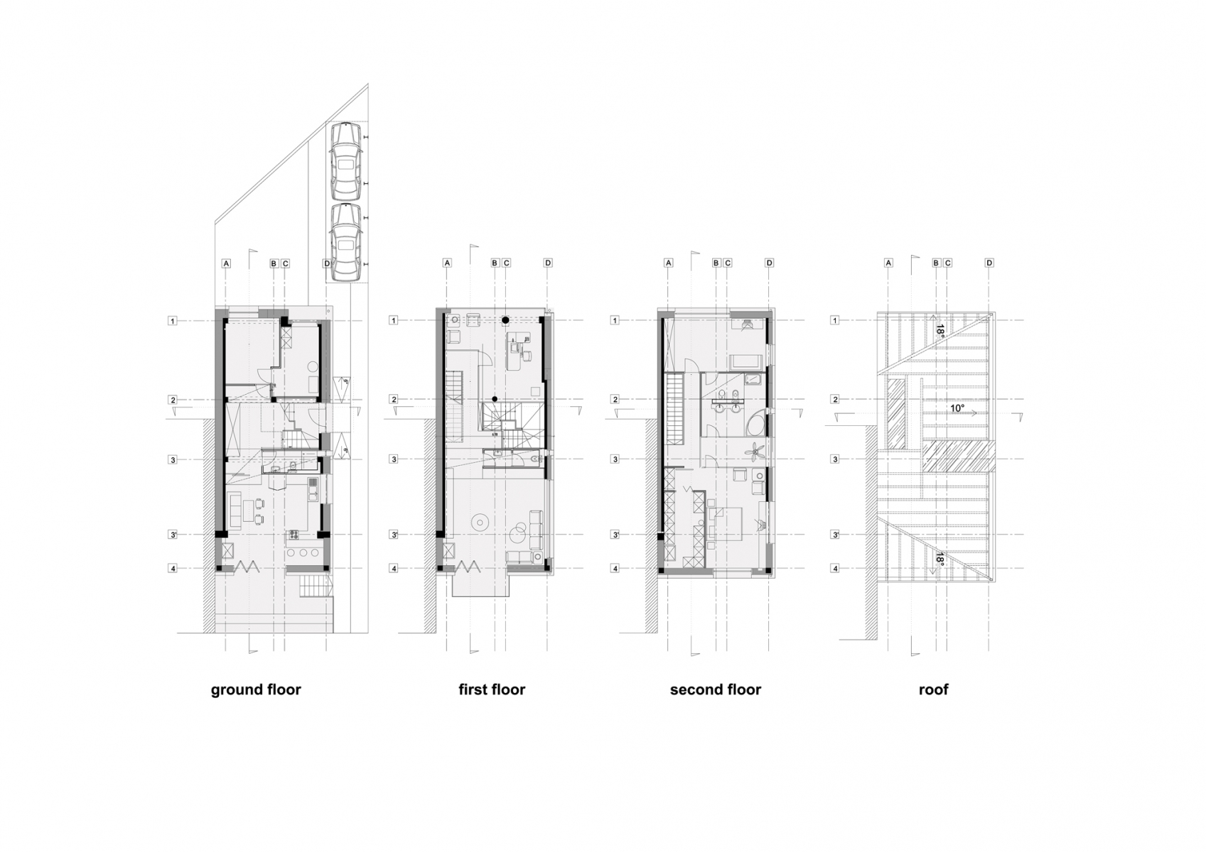
a house affording comfort, confidence and cultural “safety” was, in part, the theme received. in many cultures, old or new, houses are perceived as “friendly”, “human”, “safe” when conceptually there is a “stone” pedestal continued by an upper “wooden” structure. this was the answer that we had to give to the proposed theme: a house with a “stone” pedestal and an upper “wooden” structure.

Published in: hotnews.ro

  • Year 2008
  • Size 300sqm
  • Location Bucharest
  • Status Completed
  • Client confidential
  • Type Contracted
  • Name marasescu residence